AR Hosue
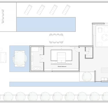
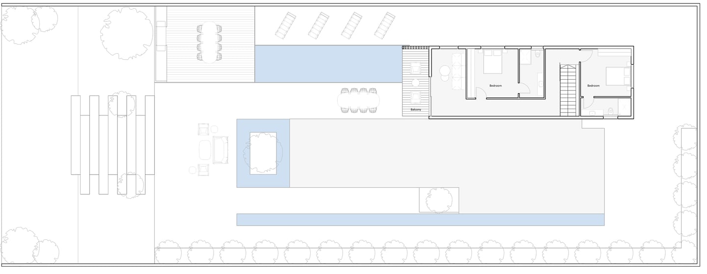
בית פרטי שתוכנן על טופוגרפיה משופעת ועם דגש על חזיתות אטומות מול פתוחות. ביציאה לחצר נמצאת הבריכה ופינות הישיבה ובהמשכה יורדים בעזרת מדרגות בטון בנויות בטופוגרפיה אל פינות ישיבה אינטימיות יותר. בפרויקט נעשה שימוש בחומרים כמו חלודה, פרקט מעושן ובטון חשוף, פרופילי החלונות גם הם מעץ מה שמעניק לבית הרגשה חמימה ומשפחתית בשילוב עם רצפת הפרקט.
שטח מגרש: 710 מ"ר שטח בנוי: 390 מ"ר שלב: בתכנון






















קומת קרקע
קומה א






